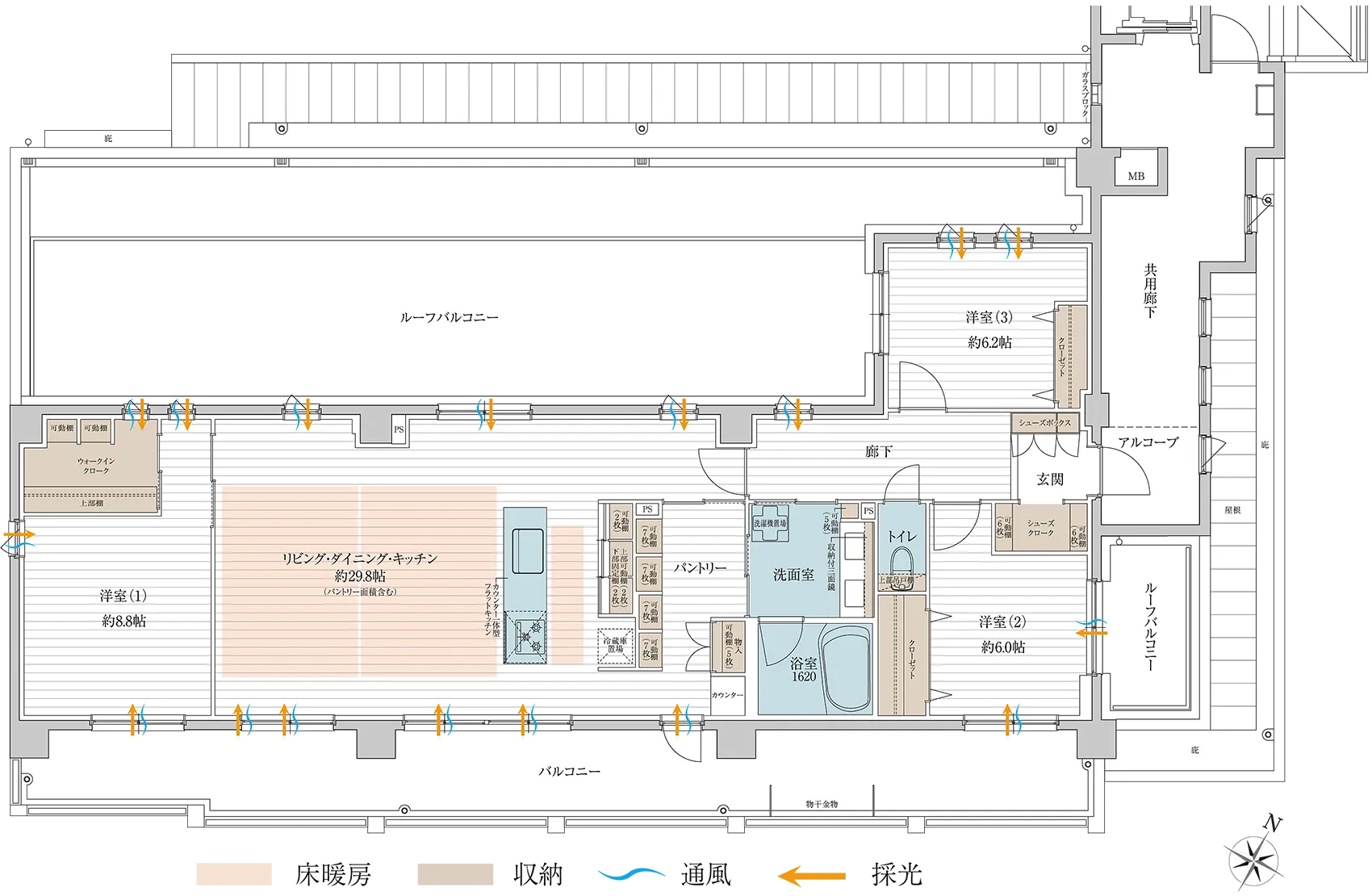
PLAN
H type
3LDK
+WIC
住居専有面積
115.35㎡
(約34.89坪)
バルコニー面積/31.50㎡(約9.52坪)
ルーフバルコニー面積/47.88㎡(約14.48坪)
- ※掲載の間取図・面積等は設計図を基に描いたもので、今後変更になる場合がございます。予めご了承ください。
3LDK
+WIC
住居専有面積
115.35㎡
(約34.89坪)
バルコニー面積/31.50㎡(約9.52坪)
ルーフバルコニー面積/47.88㎡(約14.48坪)